- VIVA Wohnbau GmbH /
- Objekte /
- Verkauf /
- BV Crimmitschau
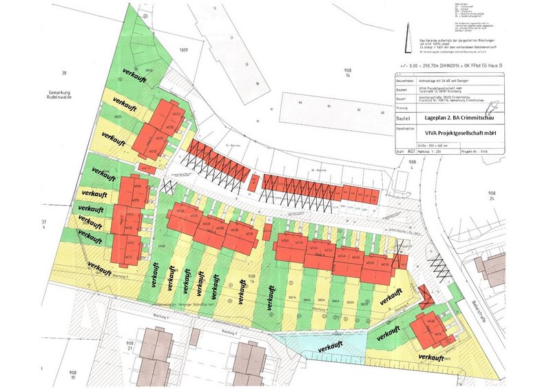
Aktuell noch im Bau befindet sich unser Bauvorhaben in 08451 Crimmitschau, Bebelstraße . Hier ensteht eine Reihenhausanlage bestehend aus insgesamt 26 Wohneinheiten
Haus A - 1 x 8 Whg. / RH
Haus B - 1 x 6 Whg. / RH
Haus C - 1 x 6 Whg. / RH
Haus D - 1 x 4 Whg. / RH
Haus E - 1 x 2 Whg. / RH
sowie 28 Einzelgaragen und 32 Stellplätzen. Es handelt sich hierbei um den 2. Bauabschnitt von insgesamt 3 im Bereich der Bebelstraße / Westbergstraße in Crimmitschau.

Die modernen 4,5 Raum-Wohnungen der Reihenmittelhäuser bieten eine Wohnfläche von ca. 112 m² und sind mit einem Kaminofen und einer Fußbodenheizung ausgestattet. Im Erdgeschoss befindet sich ein großes Wohnzimmer mit angrenzender offener Küche. Ein Gäste-WC sowie der Abstellraum sind ebenfalls im Erdgeschoss vorzufinden. Durch eine offene Treppe erreicht man das Dachgeschoss welches in zwei Kinderzimmer, ein Schlafzimmer und ein Bad aufgeteilt ist. Durch den Dachspitz in Form eines Kaltdachs stehen weitere ca. 14 m² Nutzfläche zu Verfügung. Der Außenbereich besteht aus einer Gartenfläche mit einer Terrasse.
weitere Merkmale:
Massivbauweise
Effizienzhaus 55
inkl. Terrasse/Garten
Außenanlagen
Fußbodenheizung
Kaminofen
Rollläden
Dachboden
schlüsselfertig
inkl. Maler u. Bodenbeläge
provisionsfrei
Auf ein unverbindliches persönliches Gespräch in unserem Haus oder bei einer Besichtigung am Baugrundstück würden wir uns freuen. Vereinbaren Sie gern einen Termin mit uns, auch am Wochenende.
Die modernen Wohnungen/Reihenhäuser sind Teil der attraktiven Reihenhausanlage. Die ruhige und schöne Lage in der Bebelstraße lässt den Alltagsstress schnell vergessen. Geschäfte des täglichen Bedarfs befinden sich in der Nähe.
Die lebenswerte Stadt Crimmitschau, gelegen im Tal der Pleiße, erstreckt sich vom historischen Stadtkern bis in wunderschön ländlich geprägte Ortsteile. Hier finden Jung und Alt Raum zum Leben, Wohnen, Arbeiten und Erholen. Von liebevoll geführten Kindertagesstätten, modern eingerichteten Schulen, eine Vielzahl von Kultur- und Sporteinrichtungen bis hin zur Pflege der älteren Mitbürger. Crimmitschau gehört zu einem aufstrebenden Wirtschaftsstandort mit einem breit gefächerten Branchenmix und einer Vielzahl namhafter innovativer Unternehmen. Die Verkehrsanbindung mit Autobahnanschluss und zentral gelegenen Bahnhof mit Anbindung an den internationalen Flughafen Halle-Leipzig bietet weitreichende Vorteile. Crimmitschau bietet somit für jede Lebensphase die passenden Ansprüche.